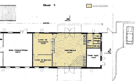
Au sein de la gare de Bollwiller, SNCF Gares & Connexions propose à la location un espace d'une surface totale de 92 m² au rez-de-chaussée.
Environnement et accès :
La gare est desservie par des trains à destination et en provenance de Strasbourg, Sélestat, Colmar, Mulhouse...Un parc pour vélos et un parking pour véhicules sont aménagés.
Un service de cars complète la desserte ferroviaire. La gare est située au cœur des flux urbains et voyageurs, elle offre une visibilité optimale.
Proximité avec la ville :
La gare de Bollwiller se trouve à 8min à pied du centre-ville, facilitant l'accès aux commerces, services administratifs, et autres commodités urbaines.
Modalités :
Le loyer sera déterminé en fonction du modèle économique du projet et des spécificités de la gare. Toutes les activités sont envisageables, sous réserve de validation.
Pour obtenir plus d'informations, ou demande de visites, veuillez nous contacter via l’onglet « Manifestez votre intérêt » sur le site Place de la Gare.
Cette annonce vous intéresse ?
Pour en savoir plus, connectez-vous.