Description du site :
Frontalière de la Belgique et située aux portes de Lille, Baisieux est une commune paisible et attractive en plein essor : une population d’un peu plus de 5 000 habitants en constante progression et au pouvoir d’achat supérieur à la moyenne métropolitaine, riche de nombreux commerces de proximité, d’entreprises emblématiques et d’un tissu associatif dynamique. La commune bénéficie d’une bonne accessibilité : gare SNCF, réseau de bus, RM41 et échangeur A27.
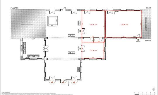
Au sein de la gare de Baisieux, SNCF Gares & Connexions propose à la location un espace d'une surface totale de 21m2. Ce local de taille contenue permet d’accueillir de nombreuses activités.
A noter que deux autres espaces sont actuellement disponibles. L’un également accessible depuis le hall de la gare, l’autre indépendant et accessible depuis le parvis de la gare. Connectables après travaux, les trois unités permettraient de disposer d’une surface commerciale de 120m2.
Environnement et accès :
La gare est desservie par les trains TER Hauts-de-France assurant la desserte entre Lille Flandres et Tournai (Belgique) avec un premier train dès 06h15 le matin en semaine et un dernier train à 22h20 le soir. Un parking pour véhicules et motos est aménagé sur le devant. Un service de taxis et de cars du réseau Arc-en-Ciel, ainsi que des vélos électriques en libre-service et des arceaux vélos complètent la desserte ferroviaire transfrontalière. Les services suivants y sont disponibles : guichet de ventes, borne d'achat de billets, salle d'attente. Le local bénéficie d’une belle visibilité depuis le parvis et le parking de la gare.
Proximité avec la ville :
Avec plus de 56 000 voyageurs en 2024, la gare de Baisieux est en connexion directe avec le centre-ville, facilitant ainsi l'accès aux divers commerces, services administratifs, et autres commodités urbaines. Un projet résidentiel de 40 logements doté d’un centre de santé et de deux commerces s’implantera à proximité immédiate de la gare d’ici 2028.
La commune de Baisieux est engagée dans la démarche partenariale « Objectif Centralité», soutenue par la Métropole Européenne de Lille, la CCI Grand Lille, et la CMA Hauts de France. L'objectif est de créer un véritable centre-ville autour de la gare en accueillant de nouvelles activités manquantes sur la commune tout en soutenant le dynamisme de l'offre commerciale et artisanale du " Grand Baisieux ". Ainsi, le projet qui s’implantera pourra bénéficier de la dynamique d’Objectif Centralité et des soutiens mobilisables dans ce cadre.
Modalités :
Le loyer sera déterminé en fonction du modèle économique du projet et des spécificités de la gare. Toutes les activités sont envisageables, sous réserve de validation, considérant qu’un potentiel de développement a été identifié pour les activités suivantes : lieu de vente de producteurs locaux, primeurs, petite restauration, librairie/presse, équipement de la personne et équipement de la maison et services type formation (auto-école) ou micro-crèche.
Pour obtenir plus d'informations, ou demande de visites, veuillez nous contacter via l’onglet « Manifestez votre intérêt » sur le site Place de la Gare.
Cette annonce vous intéresse ?
Pour en savoir plus, connectez-vous.