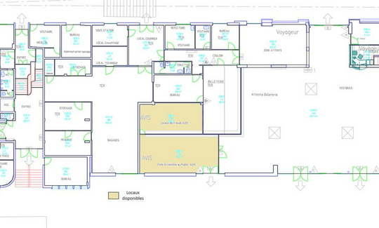
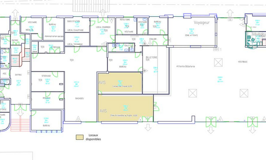
Au sein de la gare de Châlons-en-Champagne, SNCF Gares & Connexions propose à la location un espace d'une surface totale de 74m² au rez-de-chaussée.
Environnement et accès :
La gare est desservie par des trains à destination et en provenance de Verdun, Epernay, Bar-le-Duc, Metz, Nancy, etc... Un parc pour vélos et un parking pour véhicules sont aménagés. Un service de cars complète la desserte ferroviaire. Les services suivants sont disponibles : borne d'achat de billets, salle d'attente, commerces (selon disponibilité) … La gare est située au cœur des flux urbains et voyageurs, elle offre une visibilité optimale.
Proximité avec la ville :
La gare est située dans une région dynamique, avec une forte activité économique. La gare de Châlons-en-Champagne se trouve à 15min à pied du centre-ville, facilitant l'accès aux commerces, services administratifs, et autres commodités urbaines.
Modalités :
L'appel à manifestation d'intérêt prendra fin le 11/05/2026. A compter de cette date, les projets transmis ne pourront plus être modifiés par les candidats et tout projet reçu après le délai imparti sera rejeté. Vous êtes intéressé par ce local et souhaitez déposer une candidature, veuillez télécharger le dossier administratif via l'accès candidature « Accédez à l’espace candidature » du site Place de la Gare. Les dossiers de candidature doivent être déposés sur la plateforme dédiée avant la date limite.
Le candidat propose le montant de loyer, en euros et/ou en pourcentage du chiffre d’affaires prévisionnel, en fonction de son activité et des prix pratiqués sur le marché. La proposition est étudiée au regard du projet présenté et des caractéristiques de la gare. Toutes les activités sont possibles, sous réserve de validation par le jury lors de la phase d’instruction des candidatures.
L’appel à projets porte exclusivement sur une location de locaux. Aucune vente de locaux ou du bâtiment de la gare n’est proposée.
Cette annonce vous intéresse ?
Pour en savoir plus, connectez-vous.