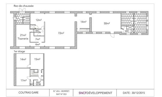
Au sein de la gare de Coutras, SNCF Gares & Connexions propose à la location un espace d'une surface totale de 188 m² en rdc
Environnement et accès :
La gare est desservie par des trains TER entre Bordeaux et Limoges, mais également Bordeaux et Brive ou encore Angoulême et Bordeaux. Les services suivants sont disponibles : guichet de vente, borne d'achat de billets, salle d'attente … La gare est située au cœur des flux voyageurs et elle offre une visibilité optimale.
La gare est située dans une région dynamique et se trouve à 5mn du centre-ville, facilitant l'accès aux commerces, services administratifs, et autres commodités urbaines.
Les modalités:
La mise à disposition du local se fait dans le cadre d’un appel à projets.
Le candidat propose le montant de loyer, en euros et/ou en pourcentage du chiffre d’affaires prévisionnel, en fonction de son activité et des prix pratiqués sur le marché. La proposition est étudiée au regard du projet présenté et des caractéristiques de la gare.
Toutes les activités sont possibles, sous réserve de validation par le jury lors de la phase d’instruction des candidatures.
L’appel à projets porte exclusivement sur une location de locaux. Aucune vente de locaux ou du bâtiment de la gare n’est proposée.
Pour obtenir plus d'informations, ou demande de visites, veuillez nous contacter via l’onglet « Manifestez votre intérêt » sur le site Place de la Gare – Projet de dynamisation territoriale. .
Cette annonce vous intéresse ?
Pour en savoir plus, connectez-vous.